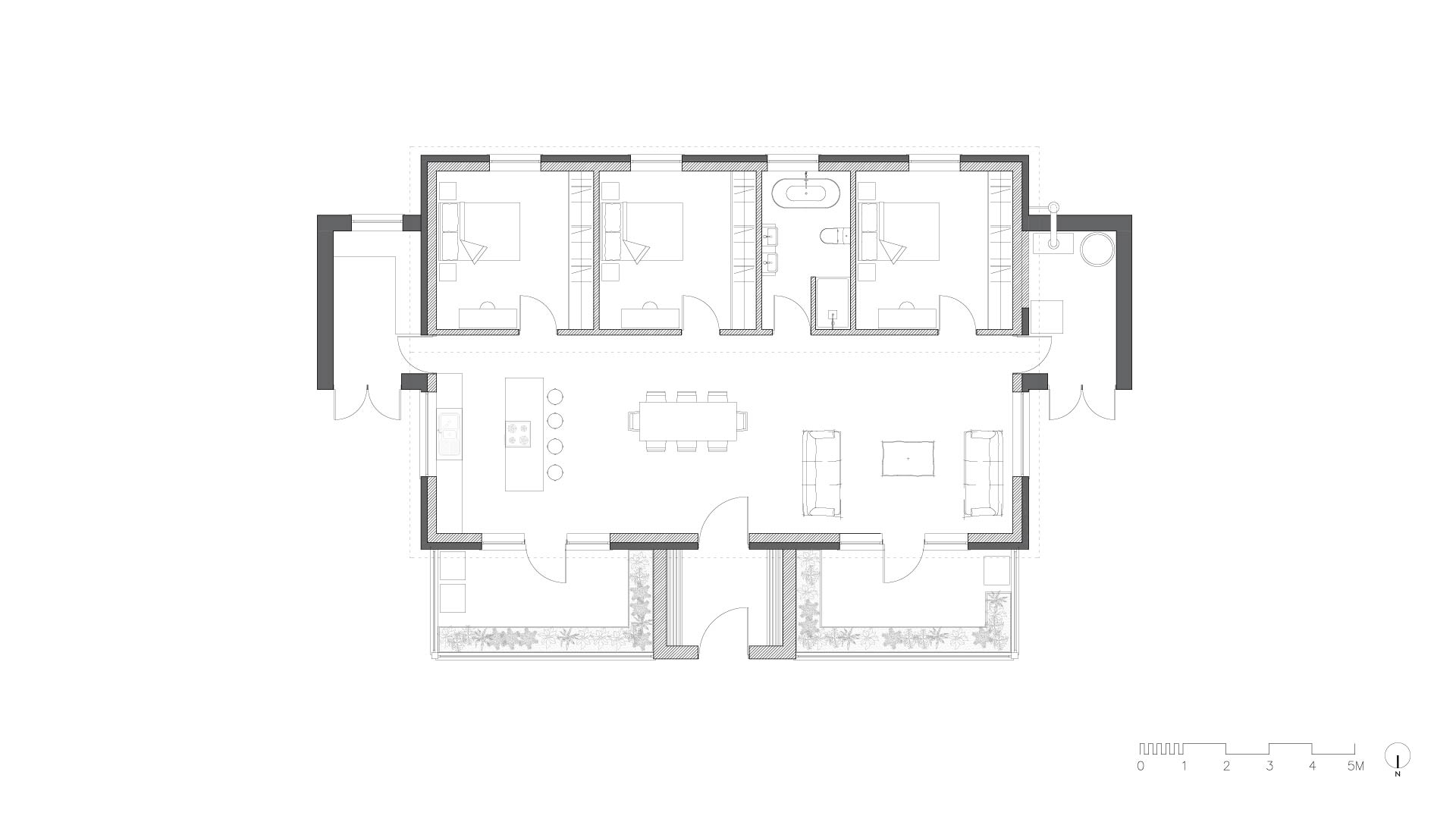
Barn Conversion is a Class Q conversion of a redundant agricultural shed into an off-grid, zero-carbon dwelling. The project integrates an air source heat pump, photovoltaic panels, and a micro wind turbine, supported by a passive environmental strategy using north-facing rooflights and south-facing glazing to optimise daylight and solar gain. Clad in locally sourced silver birch, the scheme establishes a direct relationship to its rural context and embodies a low-impact, materially grounded approach to sustainable living.





